SALA COMERCIAL em São Paulo - SP, Pinheiros
Avenida Eusébio MatosoPinheiros, São Paulo - SP

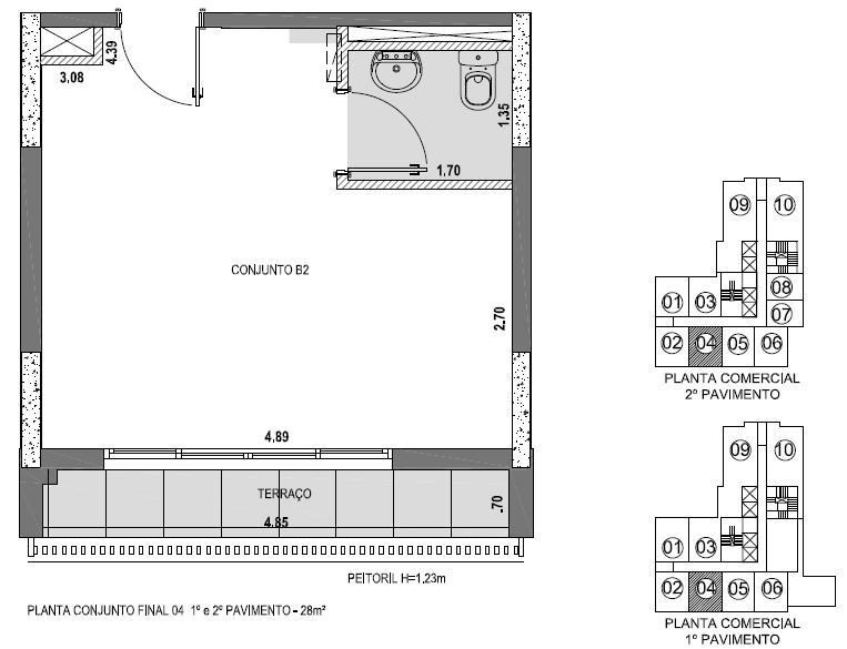
Medidas
- Área Privativa: 31 m²
Descrição
No Viva Benx Pinheiros você estará localizado em um dos principais centros empresariais e financeiros de São Paulo. Preço e disponibilidade do imóvel sujeitos a alteração sem aviso prévio.
Fale conosco: (11) 98542-4686 - 25/06/2023
Fale conosco: (11) 98542-4686 - 25/06/2023
Imóveis Similares
- Banheiros1 Garagens1
- Cód. Referência: SA00021
Sala Comercial
Vila Nova Conceição / São Paulo - SP
VendaR$ 651.084,00
Mais DetalhesBanheiros1




